Stationlands Residential Towers | 90m | 25s | Qualico | DIALOG

What do you think of this project?


  • Total voters
    72
@Spd17 you cannot arbitrarily increase the height of a project that has predetermined footings and soil mechanics. There is no way that the 25 storey tower was increased to 36 storeys -- whatever you heard must be related to tower #3. I still contend that tower #2 is progressing apace at 25 storeys.
it’s not necessarily arbitrary…

change the floor loading from 2.4 kpa (office minimum before allowing for storage etc.) to 1.9 kpa; change the floor to floor height from 14’ to 12’; change the floor plate size from 2,500 square meters to 1,500 square metres; and you could probably go from 25 stories to 36 without even considering changing from flat slab poured in place concrete to lighter framing systems including structural steel…
 
Well, it looks like there is an official name for this tower now which I personally really like - The Switch at Station Lands. I also did not expect for so much retail to be part of the development which makes me that much more excited for the completion of it 😍
IMG_5547.png
 
Well, it looks like there is an official name for this tower now which I personally really like - The Switch at Station Lands. I also did not expect for so much retail to be part of the development which makes me that much more excited for the completion of it 😍
View attachment 493211
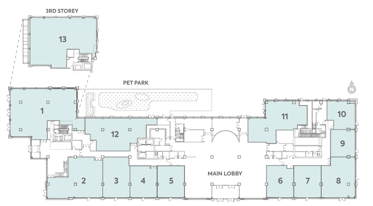
Are 10,11,12 leasing within the decade with their locations?
 
Well, it looks like there is an official name for this tower now which I personally really like - The Switch at Station Lands. I also did not expect for so much retail to be part of the development which makes me that much more excited for the completion of it 😍
View attachment 493211

This amount of CRU space has perplexed me since day 1 and would be difficult to lease in areas with 10x the pedestrian traffic and density these days.

I want to be proved wrong here, but I cannot see more than 2-3 (coffee, QSF, misc. corner store) of those being viable upon opening or even with tower 2 in play.
 
This amount of CRU space has perplexed me since day 1 and would be difficult to lease in areas with 10x the pedestrian traffic and density these days.

I want to be proved wrong here, but I cannot see more than 2-3 (coffee, QSF, misc. corner store) of those being viable upon opening or even with tower 2 in play.
I agree there is only so much demand for coffee shops or convenience stores, although with so many of those recently closing after COVID maybe there is now an opening for a bit more.

However, we also need to broaden our minds when it comes to retail downtown, which I feel besides restaurants, coffee shops and bars is now becoming a desert for retail and services.

For instance, I recently needed to find a shoe repair replace. I recall there used to be at least four downtown a few years ago, now I could only find one left.
 
^
agreed…
barber shops and hair and nail salons; fitness facilities; specialty food shops selling chocolate, olive oil, tea and coffee; medical and dental offices; physiotherapist; pharmacy; x-ray/imaging; lifestyle such as bike and skateboard (hardware and/or clothing); retail insurance and investment; book stores; phone and computer sales and repair; music; games; pet supplies; flower shop; art galleries…
 
I feel some landlords focus a lot on large retail food and hospitality chains. Maybe they are more desirable tenants, but if you have a lot of space or space that is hard to fill, you need to be flexible. So that could mean looking beyond the most obvious and going out there to contact other potential tenants including smaller local businesses that might otherwise be missed or overlooked.
 
I agree there is only so much demand for coffee shops or convenience stores, although with so many of those recently closing after COVID maybe there is now an opening for a bit more.

However, we also need to broaden our minds when it comes to retail downtown, which I feel besides restaurants, coffee shops and bars is now becoming a desert for retail and services.

For instance, I recently needed to find a shoe repair replace. I recall there used to be at least four downtown a few years ago, now I could only find one left.
And where is that I would like to know?
 
Isn't there a new shoe repair shop that opened up in the sunlife building, next to the new Hoang Loang?
 
Not quite "repair" but I have enjoyed my services from Shoe Shine Shack in the Mercer building. Have always done a good job with my boots.
 

Back
Top