Charles Camsell Redevelopment | 39m | 8s | Five Oaks | Dub Architects

I remember first reading about this project when I was in high school. I'm in my 30's now...
Ha same here, its hilarious they barely made any progress. maybe they put those articles out just as feelers to see if ppl were interested. still tonnes of work to be done.
their must be a disconnect between the contractors and some of the work that has been done, i do know dub has a contractor that only works with him but he also contracts out lots of the other stuff foundation ect.
 
I think to be fair to Dub, he really doesn't strike me as someone who is in it to get rich quick. He's a careful planner who doesn't rush projects, and while having Camsell sit as it has for so long I'm sure has been frustrating for the community, it seems to be he's working to make sure his redevelopment will be the best it can be for the community and for his own legacy.
 
I was driving past today and there was activity. Quick photo over the fence from the northeast corner.

IMG_7068.JPG
 
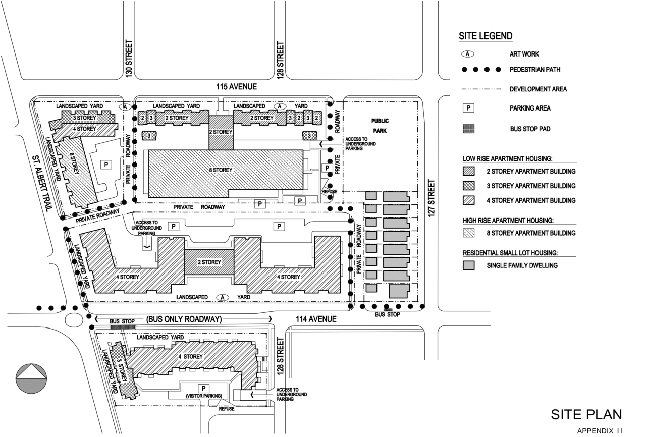
Looks like it's mainly a redistribution of heights and units:
  • Area A: Proposed maximum height is 39.0m (current maximum height is 15.0 m); and a proposed Density of 224 Dwellings/Hectare (Currently 104 Dwellings/Hectare)
  • Area B: No proposed changes
  • Area C: Proposed maximum height is 18.0m - 19.0m (current maximum height ranges between 15.0m - 34.0m); and a proposed Density of 116 Dwellings/Hectare (currently 156 Dwellings/Hectare)
  • Area D: No proposed changes
  • Area E: Provision changes to allow for zero lot line housing

View attachment 264165
View attachment 264165View attachment 264166View attachment 264167


Zoning amendments going to Public Hearing on November 17:
(Item 3.13)
 
CBC.ca: Camsell housing plan moves ahead after Edmonton council agrees to rezoning.
Good article - I like how they let Dub explain some of the delays and frustrations. Goes to show that he isn't slow simply because it is him involved. You have to feel bad for the guy to have that generalization applied based on some of the slow progress in the projects he has been involved with.
 
Well, that small 11 floor structure took as long as Western Canada's tallest building to be erected.
On the positively side, lets hope all will come to fruition with this soon.
 

Back
Top