Member Bio
- Joined
- Sep 22, 2015
- Messages
- 10,218
- Reaction score
- 23,095
- Location
- Edmonton, Alberta, Canada
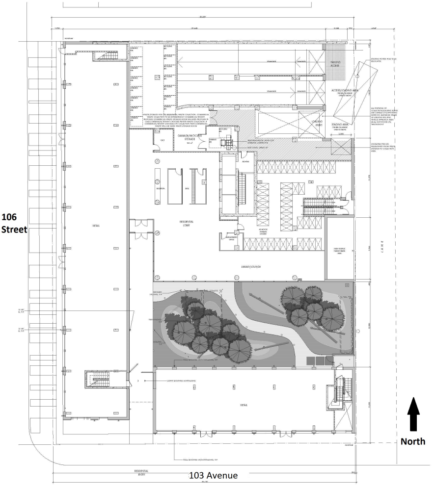
45-storey residential high rise proposed for downtown Edmonton
The public was invited Wednesday for a first look at North, a luxury apartment tower being proposed for 106 Street and 103 Avenue near the Ice District.
North would replace an existing surface parking lot and feature 350 high-end units.
“We’ll do apartments probably ranging from 500 to 1,000 square feet and then have 15 or 20 penthouse-style apartments,” developer Brad Lamb explained. “All of our products are similar, it’s all modern, it’s very cutting edge.”
http://globalnews.ca/news/3206584/45-storey-residential-high-rise-proposed-for-downtown-edmonton/
I was at the open house and have some photos to share, which I'll get to this evening.


