archited
Senior Member
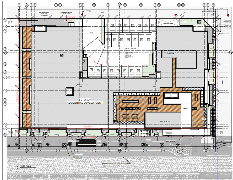
@Avenuer has already intimated that it will be 6 storeys and he has yet to be proven wrong (stick-framed no doubt) -- all you have to do is look at J&S Architecture website and you will get a real sense of what is coming -- https://www.jsarchitect.ca/projects. It seems to be a case of minimum design effort, minimum cost, maximum profit.




