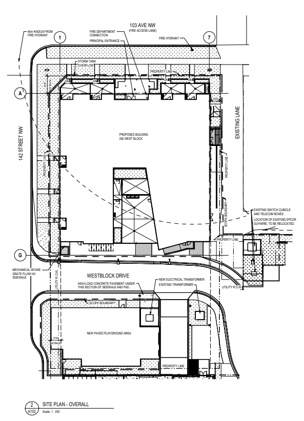
West Block | 60.35m | 16s | Beaverbrook | GEC

What do you think of this project?

  • I dislike it

    Votes: 0 0.0%
  • I dislike it a lot

    Votes: 0 0.0%

  • Total voters
    39
Looks good for the location, except for that inner courtyard. I'm usually all for inner courtyards but this one looks awful. Hopefully it's just the rendering and real product proves me wrong
 
surprised that they didn't continue the design choices of the other 2 existing buildings.
Originally this was the plan; but schedules and budgets and objectives change unfortunately as time goes on. Regardless, I still think these next West Block phases will turn out much better than the images suggest.
 
Progress as of yesterday
1000003965.jpg


1000003962.jpg
 

Back
Top