Blatchford

City comes to the rescue to allow on-site surface parking? Have they honestly drunk the cheap developer koolaid and decided that surface parking is somehow good for the community? 🤨
Reduce the front set back so surface parking can be increased at the back. Not a good proposal imho. But hey, the City's flip flop precedent has already been set elsewhere. What's good for the goose is good for the gander. Too bad for Caprolite. Live with it!!
 
Blatchford, from today.

1000054622.jpg
 
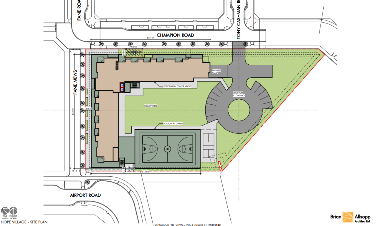
Coming to Council on Sept 16: A request from admin to sell the Metis Capital Housing Corporation some land along Airport Road for a very sharp looking mixed-use development to house Metis families in need of support. This would be an amazing way to fill that spot.
View attachment 678943
View attachment 678942
View attachment 678944
View attachment 678941
View attachment 678935View attachment 678934View attachment 678933View attachment 678937View attachment 678938View attachment 678939View attachment 678940
View attachment 678945
Council approved this sale to the Metis Capital Housing Corporation on Tuesday with little to no discussion. Should break ground shortly after the deal closes in June 2026.
 
It's an affordable housing development in an expensive area.
Ah. I believe many in Blatchford are supportive of affordable housing. The plan was always to have affordable housing in the neighbourhood, so many would have moved in with that knowledge. It is also possible that it is just not on anyone's radar - I do not believe any notice was sent to the community.
 
Ah. I believe many in Blatchford are supportive of affordable housing. The plan was always to have affordable housing in the neighbourhood, so many would have moved in with that knowledge. It is also possible that it is just not on anyone's radar - I do not believe any notice was sent to the community.
Can confirm that a lot of us did know about it, and were very supportive!
 
For Sale - Blatchford Residential Land
35 Airport Road NW
$740,000

The City of Edmonton is selling a fully serviced 0.54 acre parcel within the heart of the Blatchford Community. The current zoning for this site (BRH - Blatchford Row Housing) allows for a variety of residential uses, making it ideal for a row housing or multi-unit residential development. Nearby amenities include The Northern Alberta Institute of Technology (NAIT), Kingsway Centre, Kingsway Mall, and the NAIT/Blatchford Market LRT Station. The lot abuts Littlewood Park and a greenway (walkway). The central location of this site and proximity to public transit makes access to anywhere in the City highly convenient.
.
All interested parties must submit a Buyer’s Application Form to the City. If your submission is deemed acceptable, the City may contact you to further negotiate and formalize a sale agreement.

For more information, please visit the City of Edmonton Property Sales website at edmonton.ca/propertysales .


Half an acre, fully serviced for 740 is actually a pretty solid deal.
 
For Sale - Blatchford Residential Land
35 Airport Road NW
$740,000

The City of Edmonton is selling a fully serviced 0.54 acre parcel within the heart of the Blatchford Community. The current zoning for this site (BRH - Blatchford Row Housing) allows for a variety of residential uses, making it ideal for a row housing or multi-unit residential development. Nearby amenities include The Northern Alberta Institute of Technology (NAIT), Kingsway Centre, Kingsway Mall, and the NAIT/Blatchford Market LRT Station. The lot abuts Littlewood Park and a greenway (walkway). The central location of this site and proximity to public transit makes access to anywhere in the City highly convenient.
.
All interested parties must submit a Buyer’s Application Form to the City. If your submission is deemed acceptable, the City may contact you to further negotiate and formalize a sale agreement.

For more information, please visit the City of Edmonton Property Sales website at edmonton.ca/propertysales .


Half an acre, fully serviced for 740 is actually a pretty solid deal.
I think Streetside was planning to build on this lot at some point... Guess the lack of interest in their current offerings changed some plans...
 
I think Streetside was planning to build on this lot at some point... Guess the lack of interest in their current offerings changed some plans...
No offense to Streetside or their partnered architects, but...

1758309945956.png

This is not an easy pitch. You can easily find similar mid-century homes on massive lots with better appreciation potential on the underlying lot. The neighborhood does command a bit of a premium, but this is in Glenora:

1758310172343.png
 
No offense to Streetside or their partnered architects, but...

View attachment 682356
This is not an easy pitch. You can easily find similar mid-century homes on massive lots with better appreciation potential on the underlying lot. The neighborhood does command a bit of a premium, but this is in Glenora:

View attachment 682359
The City made two changes to the Blatchford zoning bylaws solely for Streetside: narrower townhomes for the units on Airport Road and allowing bungalows for those units right on the pond. Maybe some other builder can actually take advantage these changes in the future...
 
City comes to the rescue to allow on-site surface parking? Have they honestly drunk the cheap developer koolaid and decided that surface parking is somehow good for the community? 🤨
That's not what this is, no. As it says directly on the notification, WSP Consulting has APPLIED for this amendment.
 

Back
Top